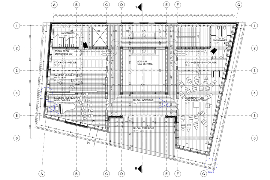
École d’art pour enfants
«La difficulté est l’un des plus sûrs éléments de la beauté » Fernand POUILLON
L’art est un chemin et un but. Le but est beau et sublime. Le chemin pour y arriver est long, dur et parsemé de pièges. Atteindre le but se mérite. Cela nécessite des sacrifices, de la ténacité et de la détermination. L’art est un monde beau et difficile. Un bâtiment dédié à l’art doit exprimer ces deux caractéristiques.
En plus de travailler et d’exposer, ce bâtiment doit permettre de créer des vocations et de s’identifier.
Ainsi, il doit avoir une certaine présence qui parle du respect qu’impose l’activité artistique.
Toutefois, étant destiné aux enfants, il doit garder un côté chaleureux et éviter d’être trop imposant ou oppressant.
C’est dans l’intervalle de cette contradiction que se situe la réponse à la problématique de l’école d’art, entre exigence et bienveillance.
La peau de l’école d’art exprime le dessin et la musique, éléments de programme et destination du bâtiment. Cette peau joue aussi un rôle fonctionnel, intégrant notamment de la protection solaire, véritable filtre entre intérieur et extérieur.
La musique est exprimée par un rythme aléatoire d’éléments verticaux, parlant du rapport au temps de cet art et de son aspect éphémère.
Le dessin est exprimé par un rythme régulier et continu parlant de la durabilité du dessin, moins éphémère, dont le principe est de figer l’instant.
En somme, un bâtiment pensé pour, Unifier une communauté et Dévoiler une discipline.
Autres projets
Découvrez ci-dessous d’autres projets de Seek qui permettront peut-être de fournir une inspiration au votre.
MAISON ATOME
La maison est ici interprétée comme un espace unitaire et protecteur, ayant comme qualité principale de regrouper autour d’une même centralité ses occupants.
De l’extérieur la maison impose un caractère massif, renforcé par l’usage de la brique et du béton, préfigurant l’existence d’un dedans.
ÉCOLE D’ART POUR ENFANTS
« La difficulté est l’un des plus sûrs éléments de la beauté » Fernand POUILLON
L’art est un chemin et un but. Le but est beau et sublime. Le chemin pour y arriver est long, dur et parsemé de pièges. Atteindre le but se mérite. Cela nécessite des sacrifices, de la ténacité et de la détermination.
L’art est un monde beau et difficile. Un bâtiment dédié à l’art doit exprimer ces deux caractéristiques.
CLOîTRE RÉPUBLICAIN
La conception de l’école fait ici référence à l’esprit républicain, qui a pensé cette institution pour préparer les enfants à leur future vie de citoyens, afin de leur permettre d’apprendre en les protégeant de l’influence intéressée et corrompue de la cité.







