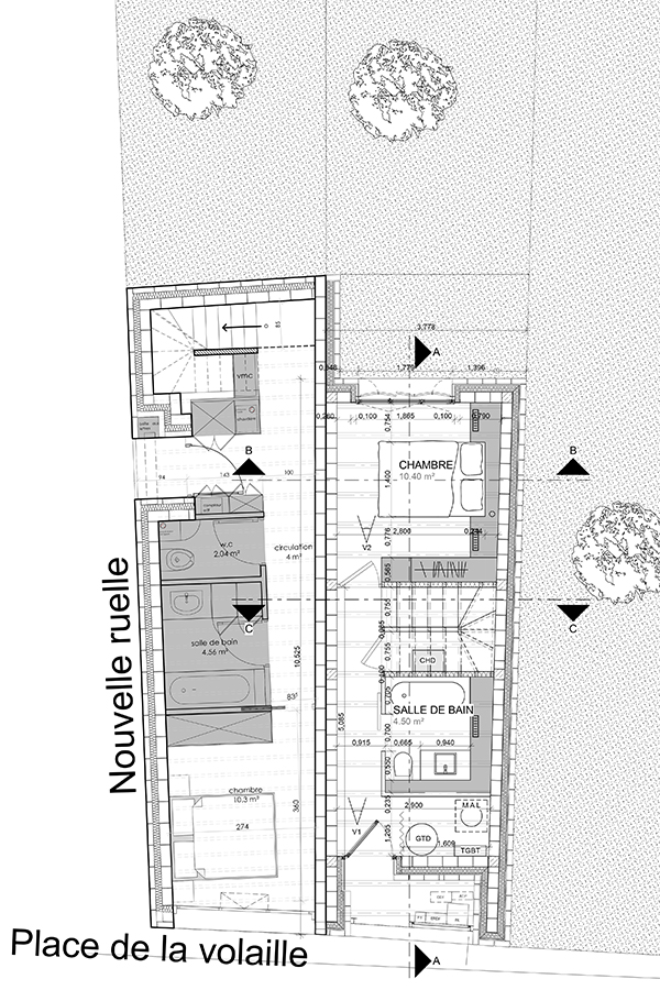
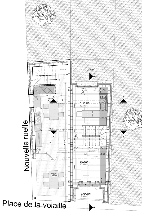
BIMBY Individuels groupés à Baziège
Le projet consiste à concevoir un ensemble de logements en bande en fond de parcelle. Les parcelles en fond de jardin s’ouvrent sur la place de la volaille et ont comme particularité une géométrie en lanières avec des largeurs de parcelles pouvant atteindre pour certaines seulement 3,50m. Un des enjeux principaux du projet est celui de repenser et de valoriser la paroi sud de la place. La solution que nous avons retenue consiste à aligner toutes les nouvelles constructions et d’harmoniser les hauteurs de la paroi sud afin de clore la composition. Des loggias viennent créer une unité et un ordre, rythmé par les verticales des murs mitoyens traités comme des contreforts. L’intervalle des loggias est traité plus librement et s’adapte aux volontés des clients et aux particularités des différentes parcelles.
Les volumes intérieurs des logements ont été étudiés pour profiter pleinement de l’orientation sud de l’ensemble bâti, idéal sur le plan thermique et bioclimatique.
Un soin particulier a été apporté aux usages, à l’étude des orientations et des vues ainsi qu’au rapport entre intérieur et extérieur, entre place et jardin.
Le matériau dominant reste la brique rouge, qui a été associée à d’autres matériaux tel que le bois et le métal afin de proposer une écriture contemporaine et intégrée, dialoguant avec son environnement et en lien avec l’architecture locale.
Autres projets
Découvrez ci-dessous d’autres projets de Seek qui permettront peut-être de fournir une inspiration au votre.
MAISON ATOME
La maison est ici interprétée comme un espace unitaire et protecteur, ayant comme qualité principale de regrouper autour d’une même centralité ses occupants.
De l’extérieur la maison impose un caractère massif, renforcé par l’usage de la brique et du béton, préfigurant l’existence d’un dedans.
ÉCOLE D’ART POUR ENFANTS
« La difficulté est l’un des plus sûrs éléments de la beauté » Fernand POUILLON
L’art est un chemin et un but. Le but est beau et sublime. Le chemin pour y arriver est long, dur et parsemé de pièges. Atteindre le but se mérite. Cela nécessite des sacrifices, de la ténacité et de la détermination.
L’art est un monde beau et difficile. Un bâtiment dédié à l’art doit exprimer ces deux caractéristiques.
CLOîTRE RÉPUBLICAIN
La conception de l’école fait ici référence à l’esprit républicain, qui a pensé cette institution pour préparer les enfants à leur future vie de citoyens, afin de leur permettre d’apprendre en les protégeant de l’influence intéressée et corrompue de la cité.








